













Charmant appartement en duplex à vendre dans quartier surplombant le village de Château-d'Oex !
Il est situé dans une petite PPE de 3 appartements dans un chalet traditionnel en bois et il offre une belle vue sur les montagnes depuis ses 2 balcons.
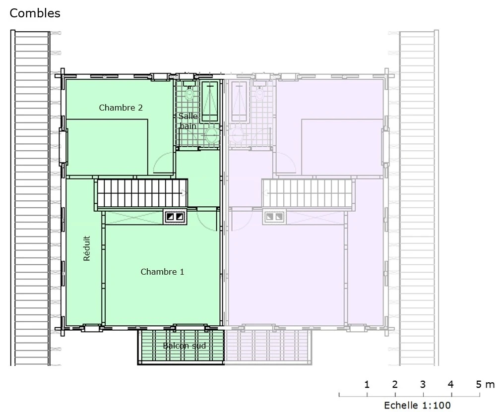
Voici sa répartition:
De plus, la PPE offre, au rez-inférieur, deux pièces avec 2 lits rabbatables, un wc-douche et une cuisine à disposition de tous les propriétaires, ce qui est un plus pour chaque appartement !
Ce chalet, construit en 1986, a bénéficié d'un excellent état d'entretien depuis sa construction.
Données techniques :
L'accès aux transports publics (gare Golden Pass) de Château-d'Oex est à proximité du chalet (400m à pied) et l'accès à l'autoroute est possible à Aigle et à Bulle. L'aéroport de Genève est situé à 1h45 en voiture.
Château-d'Oex, chef-lieu de la vallée du Pays-d'Enhaut, offre de nombreuses activités culturelles et sportives tout au long de l'année. De plus, des services administratifs, de commerces et un service de santé 24/24, 7/7, complètent son offre pour une belle qualité de vie à l'année ou de vacances.
N'hésitez pas à nous contacter pour une visite des lieux et pour de plus amples renseignements.
S.E. & O.













